
La fachada principal ofrece a cada uno de los departamentos una geometría diferenciada de balcón, de tal manera que cada habitante puede distinguir su vivienda desde el exterior y le otorga al edificio movimiento y dinamismo.

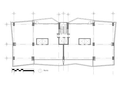
Las torres del parque están ubicadas en una de las cañadas entre Santa Fe y el sur de la ciudad. El proyecto consta de dos torres de departamentos de 100 metros de altura, dos departamentos por nivel.
Los edificios, los más altos del conjunto, separan el fraccionamiento habitacional de un puente vehicular que pasa a sólo 15 metros de una de las torres, por lo que se planteó un recubrimiento sólido y pesado para bloquear el sonido que produce el transporte pesado.





La totalidad de los estacionamientos, organizados en medios niveles para minimizar el espacio de circulación, fueron cubiertos con jardines en azotea, convirtiéndose en espacio útil para el edificio.
Los departamentos se organizan con los servicios en la parte trasera, sirviendo como filtros ante la proximidad del puente.



Las fachadas fueron cuidadosamente diseñadas para ofrecer protección térmica y acústica con el mínimo de desperdicio de material. Se fabricaron fuera del sitio, evitando así ruidos innecesarios a los vecinos.

No hay comentarios:
Publicar un comentario